EXCLUSIVITÉ ! LE TOURNE- LANGOIRAN- LOCAUX D'ACTIVITÉS NEUFS DE 1.130M² SUR UNE PARCELLE DE 14.200M² AVEC PARKING GOUDRONNÉ + PROGRAMME IMMOBILIER A CONSTRUIRE !

1 400 000€
33550 - Lestiac sur Garonne
Ref : 725
33550 - Lestiac sur Garonne
Ref : 725
Informations générales
  • ref : 725
  • Honoraires à la charge du vendeur
  • Surface habitable : 14 200 m2
  • Surface carrez : 14 200 m2
  • Accessible aux handicapés
  • Interphone
Descriptif
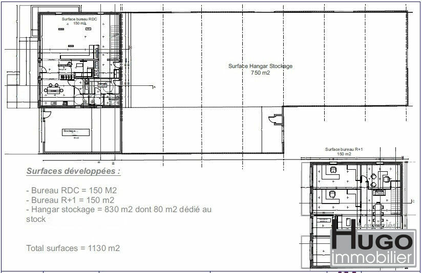
EXCLUSIVITÉ ! LE TOURNE- LANGOIRAN- LOCAUX D'ACTIVITÉS NEUFS DE 1.130M² SUR UNE PARCELLE DE 14.200M² AVEC PARKING GOUDRONNÉ et PROGRAMME IMMOBILIER DE 900M² A CONSTRUIRE ! Proche de Bordeaux sur la commune du TOURNE et idéalement situé à coté de le route départementale N°10 donnant accès à la Rocade Bordelaise, venez découvrir ces locaux d'activités rénovés intégralement en 2024 et composés d'un bâtiment avec R+1 partiel de 1130 m² de surfaces développées (bureaux = 300m², sanitaires, hangars = 750m², stockage = 80m²), parfaitement équipé et entièrement aux normes. A seulement quelques kilomètres de l'Autoroute A62, vous disposez également d'un grand parking goudronné de 4.000 m² et d'un terrain-parking d'environ 6.000m² empierré, avec un accès poids lourds. Les locaux achevés en 2024 sont isolés double peau murs et plafonds, sous système de vidéo surveillance et alarme, climatisation, portes sectionnelles fer 4x4m, sol béton ... Vous bénéficiez de bureaux, de parkings et d'un hangar de 42m X 14m et/ou 20m avec une hauteur sous plafond max de 7 mètres, donnant la possibilité de créer toutes activités sportives, industrielles ou commerciales ... Possibilité de construire un programme immobilier en R+2 de 7 logements avec garages, d'une superficie totale de 900m²... IDÉAL UTILISATEUR DIRECT OU INVESTISSEUR !!! TRÈS BON EMPLACEMENT ! HUGO IMMOBILIER ET ASSOCIES Hugo COLOMBIER Tel: O6.16.34.32.92.
Demande d'informations
Contactez HUGO IMMOBILIER ET ASSOCIES au 06 16 34 32 92

Pour recevoir plus d'informations sur cette annonce veuillez remplir le formulaire ci-dessous.


Je suis humain

Art L.223-2 Tout consommateur peut se prévaloir de s inscrire sur la liste d opposition au démarchage téléphonique ( bloctel )