BORDEAUX SAINT GENES - PLATEAU DE 105 M² A RENOVER AVEC TROPEZIENNE A CREER

230 000€
3 Pièces
33000 - Bordeaux
Ref : 724
3 Pièces
33000 - Bordeaux
Ref : 724
Informations générales
  • ref : 724
  • Honoraires à la charge du vendeur
  • Nombre de pièces :3
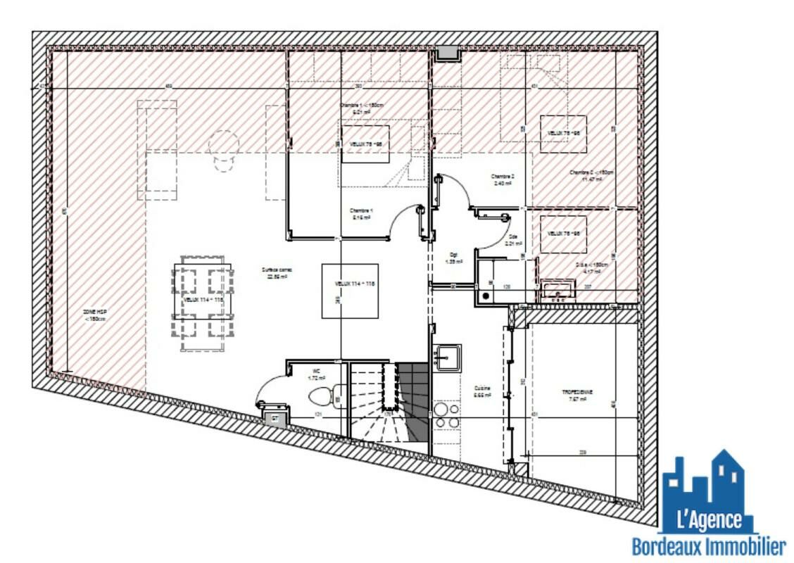
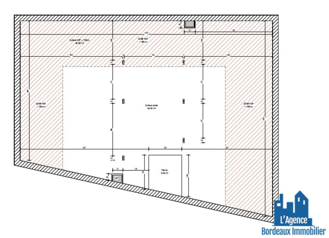
  • Surface habitable : 105 m2
  • Surface carrez : 105 m2
  • Etage : 2
  • Nombre d'étage : 2
  • GES : 5kgCO2/m2
  • DPE : 164 kWh/m2
Descriptif
BORDEAUX SAINT GENES - PLATEAU DE 105 M² A RÉNOVER AVEC TROPÉZIENNE A CRÉER... L'AGENCE BORDEAUX IMMOBILIER vous propose en plein coeur du quartier Saint Genès, ce plateau d'environ 105 m² au sol dont 66m² en Loi Carrez, à rénover entièrement avec possibilité de créer un logement T3 avec une terrasse tropézienne. Situé dans un très bel immeuble en pierre, l'accès à l'appartement se fait par le 1er étage, une entrée privative dessert un escalier qui mène au 2ème étage composé d'un plateau à rénover. La façade et les parties communes ont été rénovées et la toiture remaniée. Arrêt de Tramway: Bergonié à 5 min à pied. L'AGENCE BORDEAUX IMMOBILIER Hugo COLOMBIER Tel: O6.16.34.32.92. Copropriété de 6 lots - dont 6 lots habitation.().
DPE - GES
DPE
Image dpe
GES
Image dpe
Les informations sur les risques auxquels ce bien est exposé sont disponibles sur le site Géorisques : www.georisques.gouv.fr
Demande d'informations
Contactez L'AGENCE BORDEAUX IMMOBILIER au 05 56 38 06 90

Pour recevoir plus d'informations sur cette annonce veuillez remplir le formulaire ci-dessous.


Je suis humain

Art L.223-2 Tout consommateur peut se prévaloir de s inscrire sur la liste d opposition au démarchage téléphonique ( bloctel )