T4 neuf LION-SUR-MER

349 000€
4 Pièces
3 Chambres
14780 - Lion sur Mer
Ref : 182
4 Pièces
3 Chambres
14780 - Lion sur Mer
Ref : 182
Informations générales
  • ref : 182
  • Honoraires à la charge du vendeur
  • Nombre de pièces :4
  • Nombre de salle de bains :1
  • Nombre de chambres :3
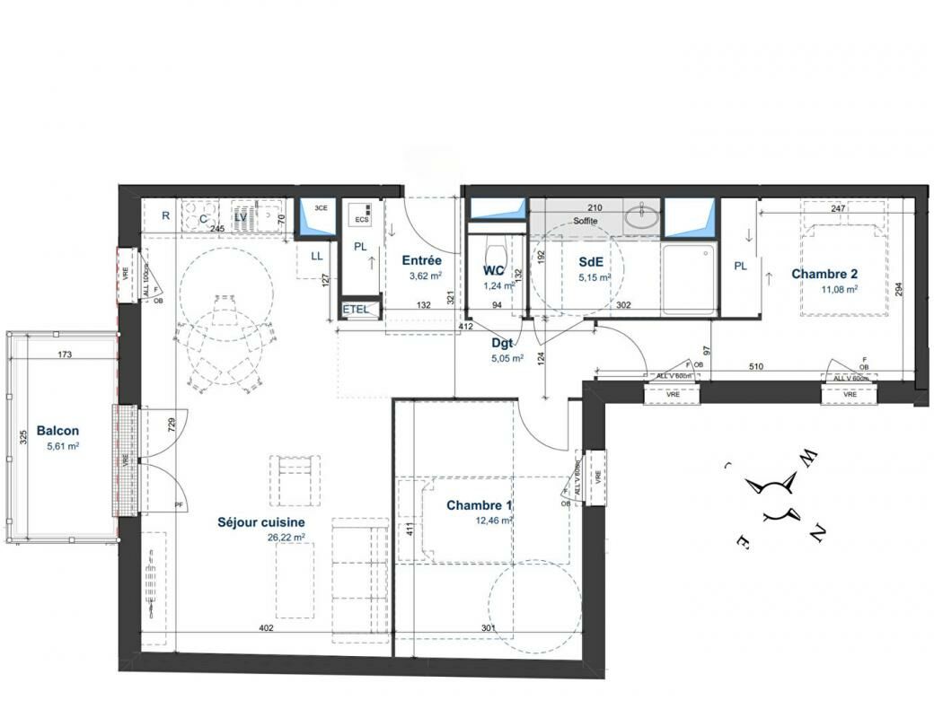
  • Surface habitable : 89 m2
  • Surface carrez : 64 m2
  • Nombre d'étage : 2
  • Année de construction : 2026
Descriptif
APPARTEMENT NEUF - FRAIS DE NOTAIRE REDUITS Dans une résidence neuve de LION-SUR-MER, à proximité de toutes les commodités (écoles, commerces, transports) et à moins de 700m de la plage, Un appartement de type T4 situé en rez-de-jardin, d'une superficie d'environ 89m2 comprenant : - Une entrée - Un cellier / buanderie - Une salle de bains - Un WC indépendant - Une belle pièce de vie avec cuisine, ouverte sur une loggia et un beau jardin d'environ 70m2 exposé sud-ouest - Trois chambres Le bien dispose également de deux places de parking privatives. Plusieurs typologies d'appartements sont disponibles (studios, T2, T3, T4) n'hésitez pas à nous contacter. Bénéficiez de tous les atouts du neuf : des matériaux de qualité, des performances énergétiques conformes aux dernières normes ainsi que des garanties pouvant aller jusqu'à 10 ans après l'achat. Copropriété de 68 lots - dont 29 lots habitation.(Pas de procédure en cours).
Demande d'informations
Contactez BANQUE IMMOBILIERE DE NORMANDIE au 02 31 96 14 77

Pour recevoir plus d'informations sur cette annonce veuillez remplir le formulaire ci-dessous.


Je suis humain

Art L.223-2 Tout consommateur peut se prévaloir de s inscrire sur la liste d opposition au démarchage téléphonique ( bloctel )