IMMEUBLE 3 APPARTEMENTS CENTRE VILLE
130 000€ 
				
						
						7 Pièces
					
						30130 - Pont Saint Esprit
				
				
					
					 Ref : 85671931T
				
Informations générales
					- ref : 85671931T
- Honoraires à la charge du vendeur
- Nombre de pièces :7
- Surface habitable : 140 m2
- Surface carrez : 140 m2
- Nombre d'étage : 3
- GES : 10kgCO2/m2
- DPE : 311 kWh/m2
- Type de chauffage : individuel electrique radiateur
- Orientation : E
- Terrasse
Descriptif
			REF 3684LB : Pont-Saint-Esprit
Ensemble immobilier avec une belle rentabilité en centre ville proche des parking en angle de rue, idéal investisseur, à proximité du parking de la bourse
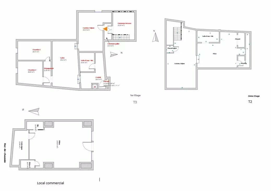
Composé de 3 lots avec des entrées indépendantes, compteur d'eau et électrique individuel
- au 1er étage : 1 T3 d'environ 78m² au sol (presque 63m² loi carrez)
- au 2ème étage : 1 T2 d'environ 72m² au sol (Prévoir de légers travaux). Presque 45m² loi carrez.
Une terrasse commune et un local technique leur sont attribués.
- au RDC : Un local commercial d'environ 30m²
Revenu locatif brut potentiel : 18000€ soit une rentabilité de plus de 11% après quelques travaux énergétiques.
Immeuble de rapport à venir visiter sans tarder, idéal investisseur souhaitant avoir une enveloppe travaux à déduire.
Plan non contractuel
		
						 DPE - GES
					
					DPE
							GES
							Les informations sur les risques auxquels ce bien est exposé sont disponibles sur le site Géorisques : www.georisques.gouv.fr
					
				 
										 
				
			 
				
			 
				
			 
				
			 
				
			 
				
			 
				
			 
				
			 
				
			 
				
			 
				
			 
				
			