IMMEUBLE 3 APPARTEMENTS CENTRE VILLE
130 000€ 
				
						
						7 Pièces
					
						30130 - Pont Saint Esprit
				
				
					
					 Ref : 85671931W
				
Informations générales
						- ref : 85671931W
- Honoraires à la charge du vendeur
- Nombre de pièces :7
- Surface habitable : 140 m2
- Surface carrez : 140 m2
- Nombre d'étage : 3
- GES : 10kgCO2/m2
- DPE : 311 kWh/m2
- Type de cuisine : aucune
- Type de chauffage : individuel electrique radiateur
- Année de construction : 1948- Orientation : E
- Terrasse
Descriptif
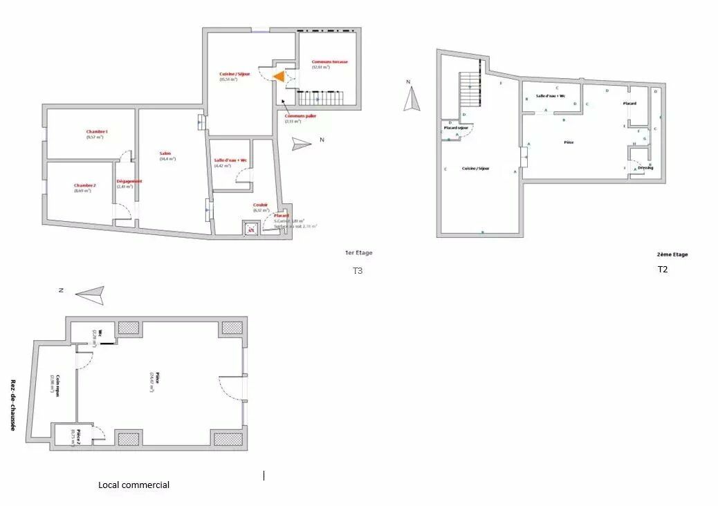
			IMMEUBLE 3 APPARTEMENTS CENTRE VILLE REF 3684LB : Pont-Saint-Esprit  Ensemble immobilier avec une belle rentabilité en centre ville proche des parking en angle de rue, idéal investisseur, à proximité du parking de la bourse    Composé de 3 lots avec des entrées indépendantes, compteur d'eau et électrique individuel    - au 1er étage : 1 T3 d'environ 78m² au sol (presque 63m² loi carrez)    - au 2ème étage : 1 T2 d'environ 72m² au sol (Prévoir de légers travaux). Presque 45m² loi carrez.   Une terrasse commune et un local technique leur sont attribués.    - au RDC : Un local commercial d'environ 30m²    Revenu locatif brut potentiel : 18000euros soit une rentabilité de plus de 11% après quelques travaux énergétiques.    Immeuble de rapport à venir visiter sans tarder, idéal investisseur souhaitant avoir une petite enveloppe travaux à déduire.    Plan non contractuel  Petite copropriété de 5 lots  Aucune charge de copropriété  Pas de procédure en cours
		
						 DPE - GES
					
					DPE
							GES
							Les informations sur les risques auxquels ce bien est exposé sont disponibles sur le site Géorisques : www.georisques.gouv.fr
					
				 
										 
				
			 
				
			 
				
			 
				
			 
				
			 
				
			 
				
			 
				
			 
				
			 
				
			 
				
			 
				
			