IMMEUBLE 3 APPARTEMENTS CENTRE VILLE

130 000€
7 Pièces
30130 - Pont Saint Esprit
Ref : 85671931X
7 Pièces
30130 - Pont Saint Esprit
Ref : 85671931X
Informations générales
  • ref : 85671931X
  • Honoraires à la charge du vendeur
  • Nombre de pièces :7
  • Surface habitable : 140 m2
  • Surface carrez : 140 m2
  • Nombre d'étage : 3
  • GES : 10kgCO2/m2
  • DPE : 311 kWh/m2
  • Type de cuisine : aucune
  • Type de chauffage : individuel electrique radiateur
  • Année de construction : 1948
  • Orientation : E
  • Terrasse
Descriptif
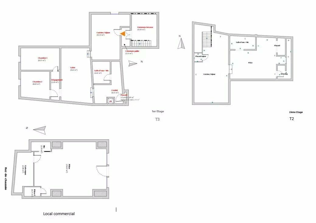
IMMEUBLE 3 APPARTEMENTS CENTRE VILLE REF 3684LB : Pont-Saint-Esprit Ensemble immobilier avec une belle rentabilité en centre ville proche des parking en angle de rue, idéal investisseur, à proximité du parking de la bourse Composé de 3 lots avec des entrées indépendantes, compteur d'eau et électrique individuel - au 1er étage : 1 T3 d'environ 78m² au sol (presque 63m² loi carrez) - au 2ème étage : 1 T2 d'environ 72m² au sol (Prévoir de légers travaux). Presque 45m² loi carrez. Une terrasse commune et un local technique leur sont attribués. - au RDC : Un local commercial d'environ 30m² Revenu locatif brut potentiel : 18000euros soit une rentabilité de plus de 11% après quelques travaux énergétiques. Immeuble de rapport à venir visiter sans tarder, idéal investisseur souhaitant avoir une petite enveloppe travaux à déduire. Plan non contractuel Petite copropriété de 5 lots Aucune charge de copropriété Pas de procédure en cours
DPE - GES
DPE
Image dpe
GES
Image dpe
Les informations sur les risques auxquels ce bien est exposé sont disponibles sur le site Géorisques : www.georisques.gouv.fr
Demande d'informations

Pour recevoir plus d'informations sur cette annonce veuillez remplir le formulaire ci-dessous.


Je suis humain

Art L.223-2 Tout consommateur peut se prévaloir de s inscrire sur la liste d opposition au démarchage téléphonique ( bloctel )