59 000€
12 Pièces
10 Chambres
69790 - Propieres
Ref : 2024_02_08
12 Pièces
10 Chambres
69790 - Propieres
Ref : 2024_02_08
Informations générales
  • ref : 2024_02_08
  • Honoraires à la charge du vendeur
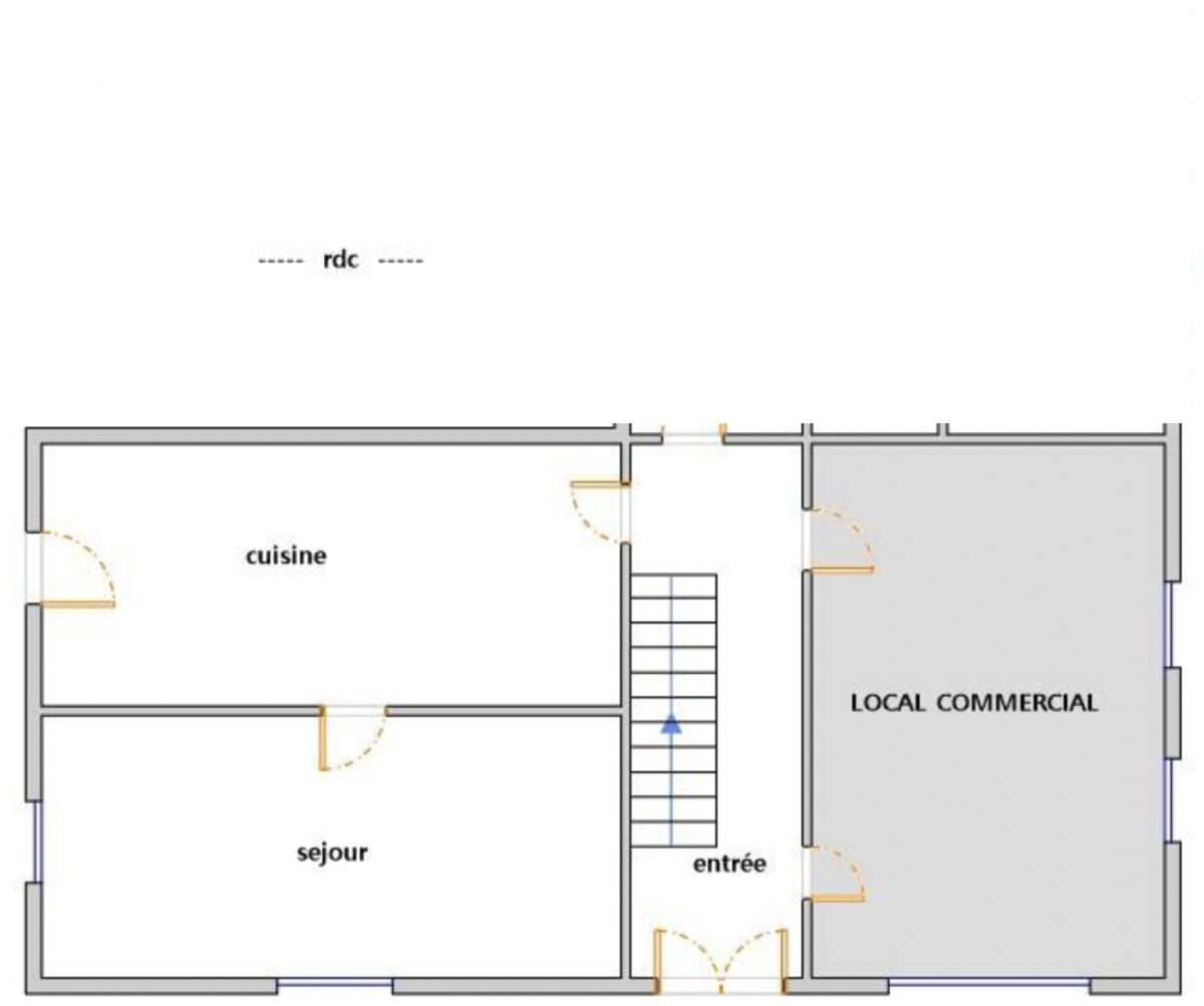
  • Nombre de pièces :12
  • Nombre de wc :3
  • Nombre de salle de bains :3
  • Nombre de salle d eau :3
  • Nombre de chambres :10
  • Surface habitable : 200 m2
  • Surface carrez : 200 m2
  • Surface terrain : 250 m2
  • Nombre d'étage : 3
  • Type de cuisine : séparée
  • Année de construction : 1800
  • Terrasse
Descriptif
Idéal résidence principale, fort potentiel locatif - Maison de caractère à rénover Fernand Immobilier vous propose en exclusivité cette grande maison de village datant de 1890, située en plein coeur de Propières (seulement 1 h 10 minutes de Lyon).Édifiée sur trois niveaux et offrant environ 200 m2 habitables, cette bâtisse ancienne dispose de 12 pièces, a rénover entièrement, elle représente une belle opportunité pour : - Un projet de résidence principale ou secondaire,- Un investissement locatif grâce à son potentiel de division en 6 lots, Ou la création de gîtes ou chambres d'hôtes. Les plus : Charme de l'ancien : pierres, volumes, authenticité Tout à pied (commerces, école, transports) a découvrir sans tarder ! Contact : Christophe Faure 07 88 53 33 37 1
Demande d'informations
Contactez FERNAND IMMOBILIER au 07 88 53 33 37

Pour recevoir plus d'informations sur cette annonce veuillez remplir le formulaire ci-dessous.


Je suis humain

Art L.223-2 Tout consommateur peut se prévaloir de s inscrire sur la liste d opposition au démarchage téléphonique ( bloctel )