257 000€
4 Pièces
3 Chambres
11100 - Narbonne
Ref : maca2361
4 Pièces
3 Chambres
11100 - Narbonne
Ref : maca2361
Informations générales
  • ref : maca2361
  • Honoraires à la charge du vendeur
  • Nombre de pièces :4
  • Nombre de wc :2
  • Nombre de salle de bains :1
  • Nombre de chambres :3
  • Surface habitable : 92 m2
  • Surface carrez : 92 m2
  • Nombre d'étage : 2
  • GES : 2kgCO2/m2
  • DPE : 67 kWh/m2
  • Type de cuisine : coin cuisine équipé
  • Type de chauffage : individuel
  • Année de construction : 2019
  • Orientation : E
  • Climatisation
  • Terrasse
Descriptif
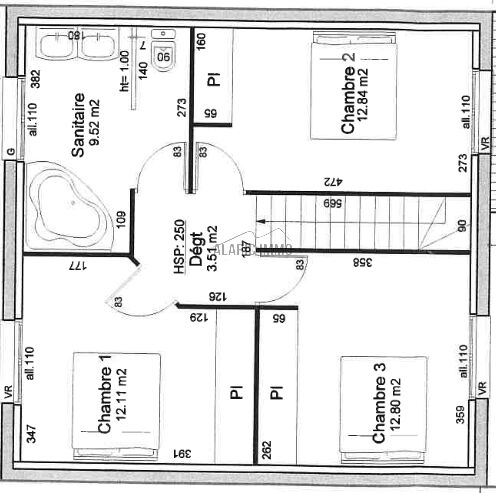
Alaric Immo vous propose à Narbonne, dans un agréable quartier pavillonnaire à 5 minutes du centre-ville et à 700m de la rocade, cette maison récente de 92 m2 habitables, parfaitement entretenue et offrant tout le confort moderne. Devant la maison, donnant sur l'allée, vous avez une première terrasse de 39m2. Au rez-de-chaussée, vous découvrirez un lumineux séjour-cuisine de 35 m2 ouvrant sur une seconde terrasse/jardin intime de 43 m2, idéale pour profiter des beaux jours. Une buanderie et un WC complètent ce niveau. a l'étage, trois chambres confortables (12, 13 et 13 m2) ainsi qu'une spacieuse salle de bains équipée d'une baignoire-jacuzzi, offrent un espace nuit fonctionnel et agréable. Taxe foncière 2025 : 1 420EUR Prestations : Garage de 14 m2 Climatisation réversible Menuiseries double vitrage et volets roulants électriques Maison récente, bien isolée et facile à vivre Pour toute information ou visite, contactez : Marco Caramelli 06 64 33 28 09 MarcoCaramelliPro@gmail.com 1
DPE - GES
DPE
Image dpe
GES
Image dpe
Les informations sur les risques auxquels ce bien est exposé sont disponibles sur le site Géorisques : www.georisques.gouv.fr
Montant estimé des dépenses annuelles d'énergie pour un usage standard : de 569€ a 769€ par an. Prix moyens des énergies indexés sur l'année 2024 (abonnements compris)
Demande d'informations
Contactez ALARIC IMMO au 04 11 66 53 35

Pour recevoir plus d'informations sur cette annonce veuillez remplir le formulaire ci-dessous.


Je suis humain

Art L.223-2 Tout consommateur peut se prévaloir de s inscrire sur la liste d opposition au démarchage téléphonique ( bloctel )