MAISON A TERMINER

60 000€
5 Pièces
3 Chambres
88330 - Vaxoncourt
Ref : 1144
5 Pièces
3 Chambres
88330 - Vaxoncourt
Ref : 1144
Informations générales
  • ref : 1144
  • Honoraires à la charge du vendeur
  • Nombre de pièces :5
  • Nombre de wc :1
  • Nombre de salle de bains :2
  • Nombre de chambres :3
  • Surface habitable : 145 m2
  • Surface carrez : 145 m2
  • Surface terrain : 160 m2
  • Type de cuisine : séparée
Descriptif
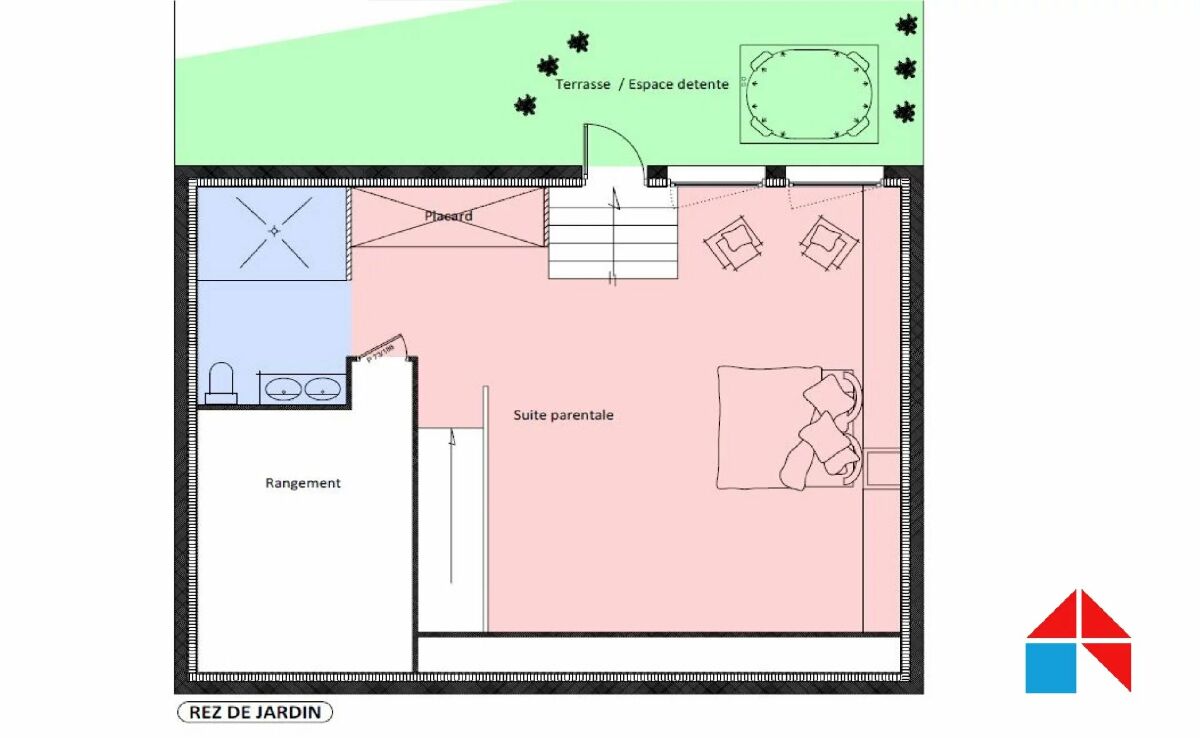
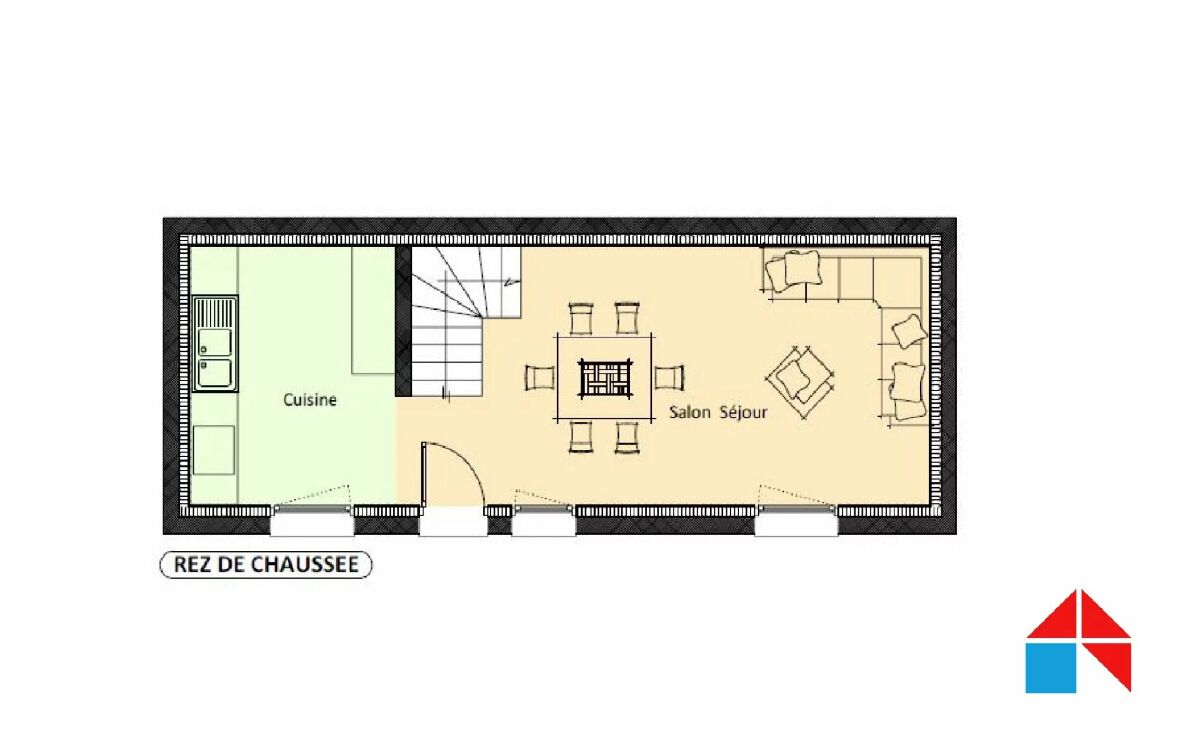
MAISON A TERMINER MAISON A FINIR DE RENOVER Opportunité exceptionnelle pour les amateurs de rénovation ! Ce bà¢timent, offrant un grand potentiel, attend d'ètre terminé selon vos envies. Les travaux déjà réalisés : - Charpente et couverture - Fenètres Etc ... ... plus d'infos sur demande par téléphone à l'intérieur, Imaginez : Votre espace de vie au rez-de-chaussée. à l'étage, deux belles chambres, une salle de bain et un dressing sur mesure. (déja réalisé en partie) La pièce maà®tresse ? Une somptueuse suite parentale avec accès direct au terrain et un espace spa privé, offrant une vue imprenable sur la campagne environnante. Les photos proposées sont des projections 3D non contractuelles pour vous aider à visualiser le potentiel incroyable de ce projet. Prix de vente : 60 000 euros, honoraires inclus. Pour plus d'informations, contactez moi. Grà¢ce à son expertise en architecture, il saura vous accompagner et vous conseiller dans ce projet unique. Ne manquez pas cette chance de créer la maison de vos rèves !
Demande d'informations
Contactez NAT'IMMOBILIER au 07 81 24 32 93

Pour recevoir plus d'informations sur cette annonce veuillez remplir le formulaire ci-dessous.


Je suis humain

Art L.223-2 Tout consommateur peut se prévaloir de s inscrire sur la liste d opposition au démarchage téléphonique ( bloctel )