Terrain constructible de 908m² arboré et au calme

39 900€
64270 - Arancou
Ref : 315
64270 - Arancou
Ref : 315
Informations générales
  • ref : 315
  • Honoraires à la charge du vendeur
  • Surface habitable : 908 m2
  • Type de cuisine : aucune
  • Jardin arboré
  • Jardin cloturé
Descriptif
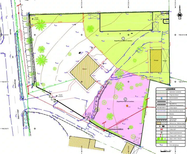
Plus de photos, de détails et possibilité de réserver une visite sur Hellobien. Sur la commune d'Arancou, venez découvrir ce terrain constructible arboré, situé au calme. Terrain de couleur rose sur le plan, d'une superficie de 908m² à 39 900€ frais d'agence inclus. Terrain adjacent, de couleur verte sur le plan, en vente également. Achat simultané des deux terrains possible. Rejoignez la ville de Peyrehorade en 15 min, Bayonne en 35 min et Pau en 1h. Un accès est déjà existant, les fluides sont en bordures du terrain, l'étude des sols a été réalisée et le permis d'aménager a été accordé. Prévoir le raccordement à l'eau et à l'électricité pour la future construction ainsi que l'installation d'un assainissement individuel. Secteur AC1. Eglise d'Arancou et Grotte Bourrouilla Les terrains sont de nouveau disponibles à la vente, les acquéreurs initiaux n'ayant pu obtenir leur financement.
Demande d'informations
Contactez Fraisse Manon au 0643100594

Pour recevoir plus d'informations sur cette annonce veuillez remplir le formulaire ci-dessous.


Je suis humain

Art L.223-2 Tout consommateur peut se prévaloir de s inscrire sur la liste d opposition au démarchage téléphonique ( bloctel )