98 000€
64420 - Soumoulou
Ref : 486
64420 - Soumoulou
Ref : 486
Informations générales
  • ref : 486
  • Honoraires à la charge du vendeur
  • Surface habitable : 2 322 m2
  • Surface carrez : 2 322 m2
  • Surface terrain : 2 322 m2
  • Type de cuisine : aucune
Descriptif
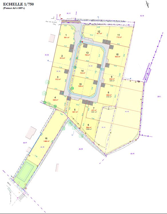
A 15 min de Pau, dans un quartier calme et verdoyant avec vue sur les Pyrénées, joli terrain de 2 322 m2 viabilisé, lot no6, proche de tous commerces et commodités. Construisez la maison de vos rêves dans ce petit lotissement de 16 lots situé entre Pau, Tarbes et Lourdes. 1
Demande d'informations
Contactez BERDUCOU Laurence au 0684830115

Pour recevoir plus d'informations sur cette annonce veuillez remplir le formulaire ci-dessous.


Je suis humain

Art L.223-2 Tout consommateur peut se prévaloir de s inscrire sur la liste d opposition au démarchage téléphonique ( bloctel )