98 000€
64420 - Soumoulou
Ref : 489
64420 - Soumoulou
Ref : 489
Informations générales
  • ref : 489
  • Honoraires à la charge du vendeur
  • Surface habitable : 942 m2
  • Surface carrez : 942 m2
  • Surface terrain : 942 m2
  • Type de cuisine : aucune
Descriptif
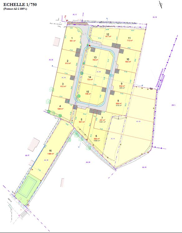
A 15 min de Pau, dans un quartier calme et verdoyant avec vue sur les Pyrénées, joli terrain de 942 m2 viabilisé, lot no9, proche de tous commerces et commodités. Construisez la maison de vos rêves dans ce petit lotissement de 16 lots situé entre Pau, Tarbes et Lourdes. 1
Demande d'informations
Contactez BERDUCOU Laurence au 0684830115

Pour recevoir plus d'informations sur cette annonce veuillez remplir le formulaire ci-dessous.


Je suis humain

Art L.223-2 Tout consommateur peut se prévaloir de s inscrire sur la liste d opposition au démarchage téléphonique ( bloctel )