vente terrain

200 000€
13122 - Ventabren
Ref : 857V13T
13122 - Ventabren
Ref : 857V13T
Informations générales
  • ref : 857V13T
  • Honoraires à la charge du vendeur
  • Orientation : S
Descriptif
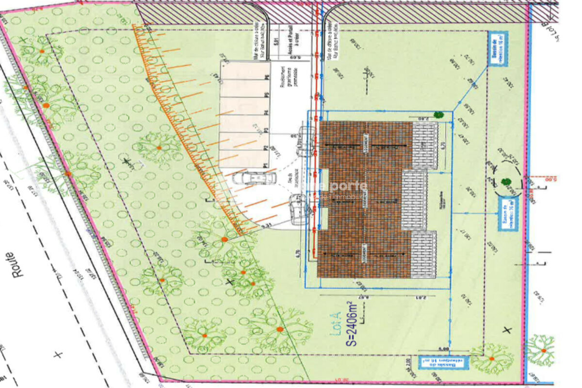
VENTABREN ? Terrain à bâtir avec projet de construction autorisé Situé sur la commune de Ventabren, dans un secteur résidentiel bénéficiant d'un accès rapide vers les axes principaux, ce terrain à bâtir s'inscrit dans un ensemble immobilier de trois lots. Le lot B, positionné au centre de l'ensemble, est mitoyen des deux côtés. Il permet la réalisation d'une maison à étage (R+1) d'environ 76 m² habitables, comprenant une pièce de vie ouverte sur l'extérieur, trois chambres, une salle d'eau et deux stationnements privatifs. Le jardin privatif de 153 m² est prolongé par un espace boisé commun d'environ 900 m², partagé entre les trois lots. Cet espace préservé apporte un cadre végétal agréable et une transition naturelle avec l'environnement existant. Le terrain est vendu avec le projet de construction autorisé et la division à venir conforme au plan du permis. Prix du terrain : 200 000 ¤ FAI ? honoraires à la charge du vendeur Prix indicatif de la construction : 175 000 ¤ Pour plus d'informations et organiser une visite, contactez-moi dès aujourd'hui ! Magali VALLET-LEFEBVRE 0609490587 RSAC795311307EI Les informations sur les risques auxquels ce bien est exposé sont disponibles sur le site Géorisques : wwwgeorisques.gouv.fr
Demande d'informations
Contactez A LA BONNE PORTE au 06 28 91 23 58

Pour recevoir plus d'informations sur cette annonce veuillez remplir le formulaire ci-dessous.


Je suis humain

Art L.223-2 Tout consommateur peut se prévaloir de s inscrire sur la liste d opposition au démarchage téléphonique ( bloctel )